Hãy chọn một vật thể đơn giản theo ý thích của mình và lập bản vẽ kĩ thuật cho vật thể đó.
Tổng hợp đề thi học kì 1 lớp 11 tất cả các môn - Kết nối tri thức
Toán - Văn - Anh - Lí - Hóa - Sinh
Đề bài
Hãy chọn một vật thể đơn giản theo ý thích của mình và lập bản vẽ kĩ thuật cho vật thể đó.
Phương pháp giải - Xem chi tiết
HS chọn bản vẽ theo ý thích để lập bản vẽ kĩ thuật
Khi lập bản vẽ kĩ thuật ta thực hiện theo các bước sau:
Bước 1: Quan sát vật thể và phân tích vật thể thành các hình khối đơn giản.
Bước 2: Chọn cac hướng chiếu phù hợp, thường là các hướng vuông góc với các mặt của vật thể.
Bước 3: Vẽ hình chiếu vuông góc của các hình khối cấu tạo nên vật thể.
Bước 4: Xóa cac nét thừa, chỉnh sửa các nét vẽ theo đúng tiêu chuẩn và ghi kích thước trên các hình chiếu.
Bước 5: Từ ba hình chiếu vuông góc vừa vẽ, vẽ hình chiếu trục đo vuông góc đều của vật thể.
Bước 6: Kẻ khung bản vẽ, khung tên, ghi các nội dung vào khung tên để hoàn thành bản vẽ.
Lời giải chi tiết
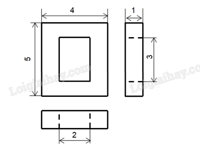
Chọn vật thể hộp chữ nhật rỗng giữa. Quy ước mỗi cạnh của tam giác đều có chiều dài 1 cm.

Lập bản vẽ kĩ thuật:
Bước 1: Nhận thấy rằng vật thể có dạng khối hộp chữ nhật rỗng được bao bởi một hình hộp chữ nhật, phần rãnh cũng là hình hộp chữ nhật.

Bước 2: Chọn các hướng chiếu lần lượt vuông góc với mặt trước, mặt trên và mặt bên trái của vật thể.

Bước 3: Lần lượt vẽ hình chiếu vuông góc của hình hộp chữ nhật bao bên ngoài vật thể, của khối hộp chữ nhật rỗng và của rãnh hộp chữ nhật.

Bước 4: Xóa các nét thừa, chỉnh sửa các nét vẽ theo quy tắc: các đường thấy vẽ bằng nét liền; các đường khuất vẽ bằng nét đứt. Ghi các kích thước của vật thể trên các hình chiếu.

Bước 5: Vẽ hình chiếu trục đo vuông góc đều của vật thể.


Bước 6: Hoàn thành khung tên, khung bản vẽ để được bản vẽ cuối cùng có dạng như sau:
