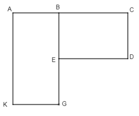
Tính chu vi của hình bên, biết BCDE là hình chữ nhật có diễn tích 135({m^2}), BC = 15 m, ABGK là hình chữ nhật có diện tích 180 mét vuông, BE = EG.
Tổng hợp đề thi học kì 1 lớp 6 tất cả các môn - Chân trời sáng tạo
Toán - Văn - Anh - Khoa học tự nhiên...
Đề bài
Tính chu vi của hình bên, biết BCDE là hình chữ nhật có diễn tích 135\({m^2}\), BC = 15 m, ABGK là hình chữ nhật có diện tích 180 \({m^2}\), BE = EG.

Phương pháp giải - Xem chi tiết
Bước 1: Tính BE dựa vào diện tích BCDE và cạnh BC đã biết
Bước 2: Tính các cạnh còn lại
Bước 3: Tính chu vi
Lời giải chi tiết
Ta có: diện tích hình chữ nhật BCDE là BC. BE = 135 (\({m^2}\)), mà BC = 15 m.
\( \Rightarrow \)BE = 135 : 15 = 9 (m)
Lại có:
EG = BE; AK = BG = 2BE
\( \Rightarrow \) EG = 9m; AK = 18m
Mà diện tích hình chữ nhật ABGK là AB. AK = 180 (\({m^2}\))
\( \Rightarrow \) AB = 180 : 18 = 10 (m)
Vậy chu vi của hình đã cho là:
P = AK + AB + BC + CD + DE + EG + KG = 18 + 10 + 15 + 9 + 15 + 9 + 10 = 86 (m)