Xây nhà là một trong những việc quan trọng của đời người nên luôn được chú trọng từ khâu thiết kế đến thi công. Tuy nhiên không phải ai cũng hiểu được vai trò của bản vẽ nhà quan trọng như thế nào? Cùng VRO Group tìm hiểu trong bài viết dưới đây bạn nhé!

Bản vẽ nhà là gì?
Bản vẽ nhà là bản vẽ xây dựng phổ biến trong lĩnh vực thiết kế và thi công xây dựng nhà hiện nay. Trong bản vẽ xây dựng bao gồm các hình biểu diễn như mặt bằng, mặt đứng, mặt cắt và các số liệu xác định hình dạng, cấu tạo cũng như kích thước của ngôi nhà.
Nội dung bên trong bản vẽ nhà
Bên trong bản vẽ thiết kế nhà bao gồm mặt bằng, mặt đứng, mặt cắt và các số liệu.
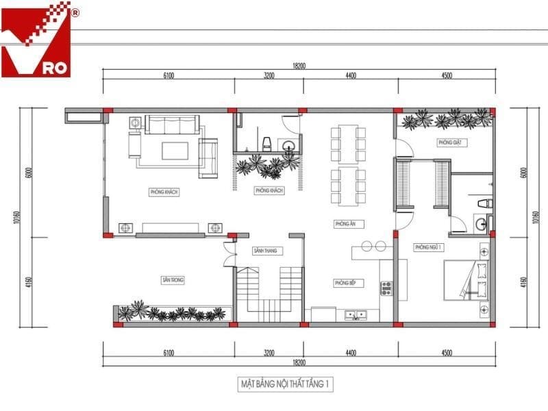
Mặt bằng
Mặt bằng là hình cắt mặt bằng của ngôi nhà miêu tả vị trí, kích thước, các bức tường, vị trí cửa chính, cửa sổ, các cột, các phòng hay các thiết bị đồ đạc. Đây là hình biểu diễn quan trọng nhất của ngôi nhà.

Mặt đứng
Mặt đứng là hình chiếu vuông góc các mặt ngoài của ngôi nhà miêu tả mặt chính, mặt sau, mặt bên…

Mặt cắt
Mặt cắt là hình cắt có mặt phẳng cắt song song mặt phẳng chiếu đứng hoặc mặt phẳng chiếu cạnh nhằm miêu tả các bộ phận và kích thước của ngôi nhà theo chiều cao (chiều cao cửa cửa, chiều cao của mái…)

Ký hiệu và quy ước các bộ phận trong ngôi nhà
Trên bản vẽ nhà thường sử dụng những ký hiệu quy ước để vẽ một số bộ phận của ngôi nhà như:

Đọc bản vẽ nhà

Trình tự đọc Nội dung cần hiểu Bản vẽ nhà 1 tầng (hình trên) 1. Khung tên – Tên gọi ngôi nhà – Tỉ lệ bản vẽ – Nhà 1 tầng – 1:100 2. Hình biểu diễn – Tên gọi hình chiếu – Tên gọi mặt cắt – Mặt đứng – Mặt cắt A-A, mặt bằng 3. Kích thước – Kích thước chung – Kích thước từng bộ phận – 6300, 4800, 4800 – Phòng sinh hoạt chung: (4800×2400)+92400×600) – Phòng ngủ: 2400 x 2400 – Hiên rộng: 1500 x 2400 – Nền cao: 600 – Tường cao: 2700 – Mái cao: 2500 4. Các bộ phận – Số phòng – Số cửa đi và cửa sổ – Các bộ phận khác – 3 phòng – 1 cửa đi 2 cánh, 6 cửa sổ đơn – 1 hiên có lan can
Dựa theo bảng trên đây, bạn sẽ đọc bản vẽ nhà theo trình tự như sau:
- Bước 1: Đọc nội dung có trong “Khung tên”.
- Bước 2: Phân tích hình biểu diễn để biết được cách bố trí các phòng và vị trí các bộ phận của ngôi nhà.
- Bước 3: Phân tích, xác định kích thước của ngôi nhà gồm kích thước chung, kích thước từng bộ phận của ngôi nhà.
- Bước 4: Xác định bộ phận của ngôi nhà như số phòng, số cửa đi, số cửa sổ và các bộ phận khác.
Vai trò của bản vẽ nhà
Trước khi bắt tay vào thi công xây dựng công trình, bạn cần phải nắm qua được bản vẽ nhà như thế nào vì đây là một trong những yếu tố quan trọng khi thi công.
- Bản vẽ thiết kế nhà giúp bạn tối ưu chi phí thi công để đảm bảo khi xây dựng không phát sinh thêm vấn đề nào nữa. Hơn nữa, bạn cần xem bản vẽ để nếu có vấn đề gì có thể chỉnh sửa phù hợp với nhu cầu của mình trước khi thi công.
- Bản vẽ còn là cơ sở để thỏa thuận giữa 3 bên là đơn vị thiết kế, nhà thầu và cơ quan nhà nước. Khi thực hiện một số thủ tục pháp lý thì không thể thiếu bản vẽ.
- Có bản vẽ mới có thể lên kế hoạch thi công chi tiết cũng như kiểm soát được tiến độ công trình.
- Dựa vào các số liệu, vật liệu, diện tích trong bản vẽ để dự trù được kinh phí, hạn chế được chi phí phát sinh.

Những hạn chế khi xây dựng không có bản vẽ nhà
Một số người rất chủ quan vì cho rằng bản vẽ nhà không quan trọng nên họ không chú trọng. Thực tế đã cho thấy rằng việc không có bản vẽ nhà không những làm tăng thêm rủi ro trong quá trình xây dựng mà còn khiến cho nhiều công trình thi công không đạt chuẩn về kỹ thuật. Bên cạnh đó, còn có một số hạn chế khác như:
- Phát sinh nhiều chi phí vì không có kế hoạch xây dựng cụ thể khiến người chủ không thể lường trước được.
- Không có bản vẽ thì việc xây dựng sẽ mất khá nhiều thời gian bởi gia chủ cũng như đội ngũ thi công không biết rõ ngôi nhà mình mong muốn sẽ như thế nào. Một số trường hợp khi xây lên không chuẩn phải đập đi xây lại.
- Trong xây dựng, bản vẽ chính là cơ sở để 2 bên thỏa thuận cũng như điều chỉnh thiết kế. Vì vậy nếu không có bản vẽ thì sẽ không có cơ sở để thỏa thuận, khó tránh khỏi những trường hợp phát sinh nếu có vấn đề cần giải quyết.
- Một số nhà thầu sẽ không nhận thi công nếu không có bản vẽ thiết kế sẽ khiến cho bạn gặp khó khăn trong việc tìm nhà thầu uy tín.

Bản vẽ nhà vô cùng quan trọng khi thi công vì phải dựa vào bản vẽ thì nhà thầu mới có thể lập kế hoạch thi công theo từng giai đoạn và gia chủ có thể kiểm soát được tiến độ công trình một cách chính xác. Nếu cần tư vấn hay có bất kỳ vấn đề gì thắc mắc, vui lòng liên hệ VRO Group để được đội ngũ nhân viên hỗ trợ từ A->Z bạn nhé!